193 Rosebery Street, Bedford
House
Timeless Character, Modern Opportunity
Positioned in one of Bedford's most established streets, this classic 1950s character home sits proudly on a 425sqm block and offers the warmth, charm and proportions that buyers love about homes from this era, combined with a light, bright feel throughout.
From the moment you walk inside, the home has an inviting atmosphere, with generous rooms, good natural light and a layout that is comfortable and full of opportunity.
The home presents very well and is ready to move straight into, however for those with a creative eye there is also exciting scope to add your own designer touch and take this character residence to the next level.
Whether you are looking for a beautiful place to live, a character home to personalise, or a solid property in a highly sought-after suburb, this is an opportunity that offers both lifestyle and long-term potential.
Features include:
Classic 1950s character home
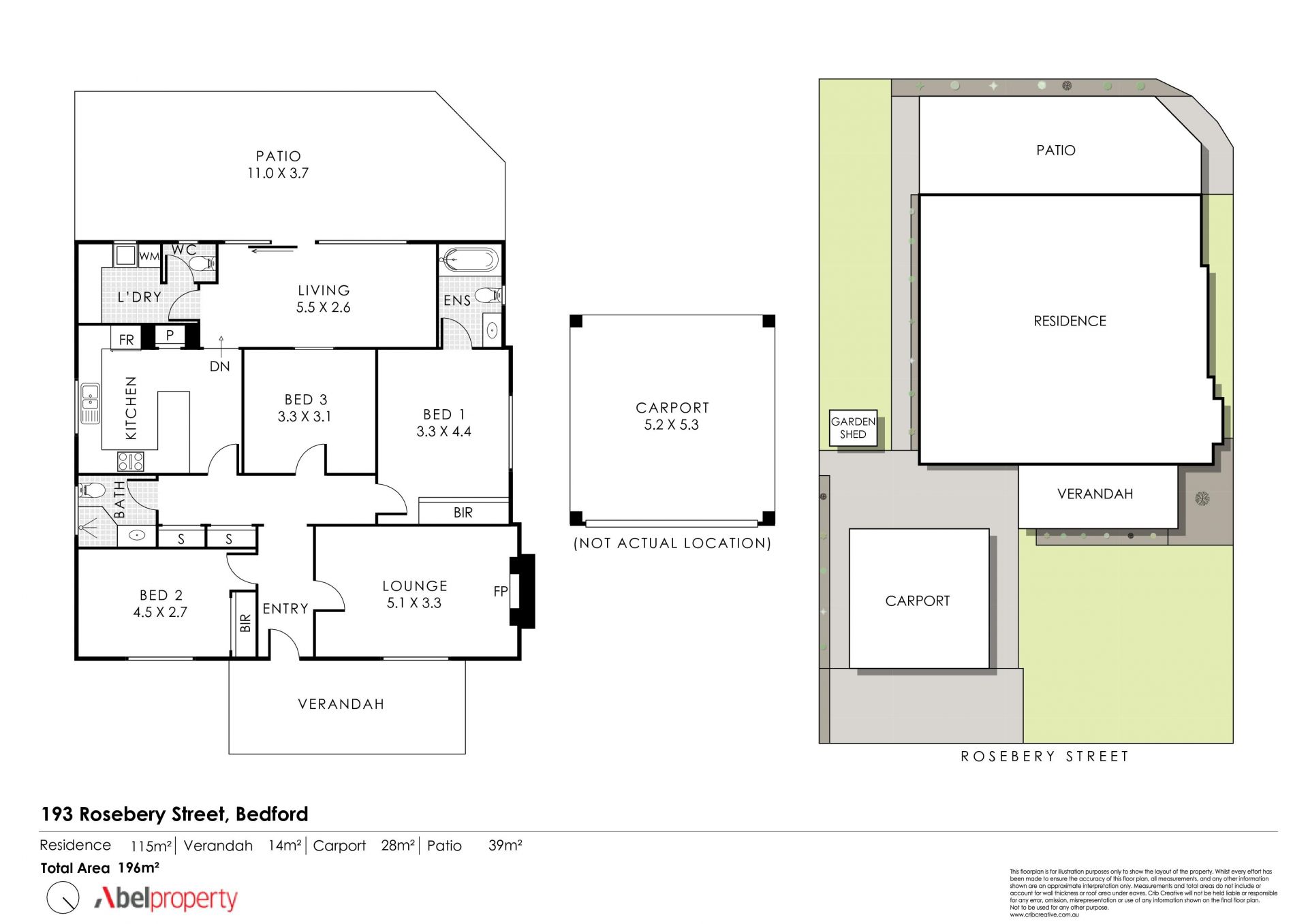
3 bedrooms, 2 bathrooms
Light-filled living spaces
Charming street presence
425sqm block
Comfortable now with scope to enhance
Located in one of Bedford's most desirable pockets
Water Rates - $1120per annum approx
Shire Rates - $1835per annum approx
Bedford continues to be one of the most tightly held suburbs, known for its tree-lined streets, character homes and close proximity to the city, schools and Beaufort Street café strip.
This is the type of home that feels good the moment you walk in - and with the right vision, could become something truly special.
From the moment you walk inside, the home has an inviting atmosphere, with generous rooms, good natural light and a layout that is comfortable and full of opportunity.
The home presents very well and is ready to move straight into, however for those with a creative eye there is also exciting scope to add your own designer touch and take this character residence to the next level.
Whether you are looking for a beautiful place to live, a character home to personalise, or a solid property in a highly sought-after suburb, this is an opportunity that offers both lifestyle and long-term potential.
Features include:
Classic 1950s character home
3 bedrooms, 2 bathrooms
Light-filled living spaces
Charming street presence
425sqm block
Comfortable now with scope to enhance
Located in one of Bedford's most desirable pockets
Water Rates - $1120per annum approx
Shire Rates - $1835per annum approx
Bedford continues to be one of the most tightly held suburbs, known for its tree-lined streets, character homes and close proximity to the city, schools and Beaufort Street café strip.
This is the type of home that feels good the moment you walk in - and with the right vision, could become something truly special.
