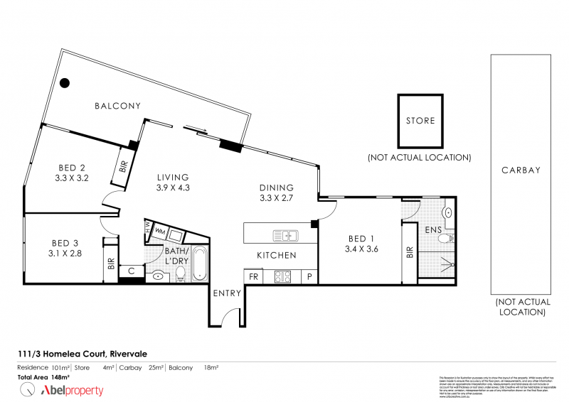
111/3 Homelea Court, Rivervale
Apartment
Modern 3-Bedroom Apartment in Prime Rivervale Location
Contact Agent
Discover your dream home in the heart of Rivervale with this impressive 3-bedroom, 2-bathroom apartment. Located on the 7th floor in the sought-after Springs precinct, this residence offers a perfect blend of modern design, comfort, and convenience.
Key Features:
• Spacious Living: The apartment features a big open plan living and dining area that seamlessly connects to a private balcony, providing the perfect space for entertaining or relaxing. Floor to ceiling windows flood the area with natural light, creating a bright and welcoming atmosphere.
• Modern Kitchen: The well-appointed kitchen includes an island bench, sleek stainless-steel appliances, and ample storage space, making it a joy for any home chef.
• Main Suite: Offers a private sanctuary with a walk-in robe, an elegant ensuite, and its own reverse cycle split air-conditioning for year-round comfort
• Additional Bedrooms: Two generously sized bedrooms, each with built-in robes and split system air-conditioning, provide flexibility for family, guests, or a home office.
• Modern Bathrooms: Both bathrooms are stylishly designed with contemporary fixtures and finishes.
• Resort-Style Amenities: This complex truly has it all, including a sparkling heated lap pool, sauna, fully equipped gym, games room, BBQ facilities and a function area. Enjoy city and inland views from various vantage points within the complex.
• Ample visitors parking
• Secure Living: The apartment includes double car parking in a secure, undercover area, along with a spacious storage room.
• Prime Location: Situated just 5km from Perth City and the CBD, and only 1.5km to Optus Stadium, this apartment offers convenience at every turn. Parklands with walking and cycle paths are right at your doorstep, along with proximity to Burswood Train Station, Crown Casino, Belmont Forum Shopping Centre, and Perth Airport.
Enjoy cafes and restaurants just metres away on Rowe Avenue.
This apartment is perfect for professionals, investors or families, seeking a great lifestyle in a vibrant community. Don't miss this opportunity to own a piece of Rivervale's finest living.
Strata rates: $1,334.15 ($123-reserve) levies p/q
Water rates: $1,192
Council rates: $1869.41
Please check the scheduled viewing times and kindly arrive at the front foyer of the first tower at the start of the inspection.
Contact Marius Bonev 0405758846
Discover your dream home in the heart of Rivervale with this impressive 3-bedroom, 2-bathroom apartment. Located on the 7th floor in the sought-after Springs precinct, this residence offers a perfect blend of modern design, comfort, and convenience.
Key Features:
• Spacious Living: The apartment features a big open plan living and dining area that seamlessly connects to a private balcony, providing the perfect space for entertaining or relaxing. Floor to ceiling windows flood the area with natural light, creating a bright and welcoming atmosphere.
• Modern Kitchen: The well-appointed kitchen includes an island bench, sleek stainless-steel appliances, and ample storage space, making it a joy for any home chef.
• Main Suite: Offers a private sanctuary with a walk-in robe, an elegant ensuite, and its own reverse cycle split air-conditioning for year-round comfort
• Additional Bedrooms: Two generously sized bedrooms, each with built-in robes and split system air-conditioning, provide flexibility for family, guests, or a home office.
• Modern Bathrooms: Both bathrooms are stylishly designed with contemporary fixtures and finishes.
• Resort-Style Amenities: This complex truly has it all, including a sparkling heated lap pool, sauna, fully equipped gym, games room, BBQ facilities and a function area. Enjoy city and inland views from various vantage points within the complex.
• Ample visitors parking
• Secure Living: The apartment includes double car parking in a secure, undercover area, along with a spacious storage room.
• Prime Location: Situated just 5km from Perth City and the CBD, and only 1.5km to Optus Stadium, this apartment offers convenience at every turn. Parklands with walking and cycle paths are right at your doorstep, along with proximity to Burswood Train Station, Crown Casino, Belmont Forum Shopping Centre, and Perth Airport.
Enjoy cafes and restaurants just metres away on Rowe Avenue.
This apartment is perfect for professionals, investors or families, seeking a great lifestyle in a vibrant community. Don't miss this opportunity to own a piece of Rivervale's finest living.
Strata rates: $1,334.15 ($123-reserve) levies p/q
Water rates: $1,192
Council rates: $1869.41
Please check the scheduled viewing times and kindly arrive at the front foyer of the first tower at the start of the inspection.
Contact Marius Bonev 0405758846
