126C Moulden Avenue, Yokine
House
Elegant Family Residence in Yokine: Experience Ultimate Comfort
Welcome to this exquisite property nestled within the serene suburb of Yokine, Western Australia. As you meander down the driveway, passing through secure gates, you'll discover a meticulously presented home in a coveted enclave.
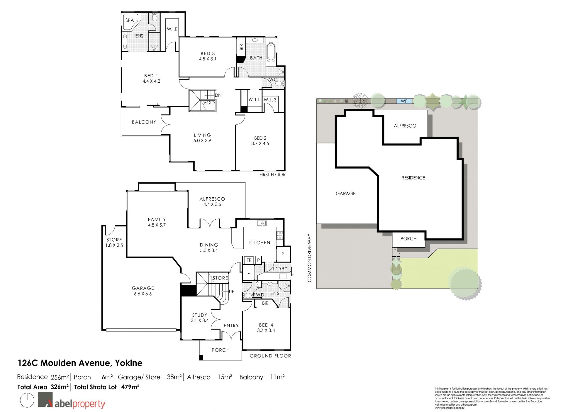
This elegant residence is part of a boutique collection of three homes, offering four bedrooms, ideal for families of any size. Upon entering, you're greeted by a luxurious lobby, featuring a private study to the left and a guest suite with a well-appointed bathroom to the right. Perfectly suited for both expected and unexpected guests, or even multi-generational living arrangements.
The heart of the home resides at the rear, providing privacy and comfort. A chef's kitchen overlooks the rear entertainment area, seamlessly connecting indoor and outdoor spaces. Immaculate gardens, professionally illuminated at night, create a captivating ambiance for year-round entertaining.
Outside, a second play area awaits, securely positioned at the front of the home. With ample space for a trampoline, children can safely enjoy their playtime while adults entertain at the back.
Downstairs, an expansive living area awaits, complete with a theatre-sized alcove and a built-in library adorned with Hampton style shutters. Direct access to the double lock-up garage ensures convenience for vehicle owners.
Upstairs, two additional bedrooms complement the grand master suite and its luxurious bathroom. All bedrooms meet the highest standards, with the master suite boasting a private balcony offering panoramic views of Yokine.
The upstairs living area provides additional space for relaxation or entertainment, catering to both adults and children.
Also if you are requiring multi-generational living the floor plan of this home works perfectly for integration and privacy between everyone.
This exceptional property is not just a home; it's a lifestyle. Situated in the highly sought-after suburb of Yokine, residents enjoy proximity to the Western Australian Golf Course and easy access to Perth city, all within a 15-minute drive.
Don't miss out on this rare opportunity. Homes like these are in high demand and won't last long. Schedule your viewing today and embrace the unmatched comfort and convenience of Yokine living.
This elegant residence is part of a boutique collection of three homes, offering four bedrooms, ideal for families of any size. Upon entering, you're greeted by a luxurious lobby, featuring a private study to the left and a guest suite with a well-appointed bathroom to the right. Perfectly suited for both expected and unexpected guests, or even multi-generational living arrangements.
The heart of the home resides at the rear, providing privacy and comfort. A chef's kitchen overlooks the rear entertainment area, seamlessly connecting indoor and outdoor spaces. Immaculate gardens, professionally illuminated at night, create a captivating ambiance for year-round entertaining.
Outside, a second play area awaits, securely positioned at the front of the home. With ample space for a trampoline, children can safely enjoy their playtime while adults entertain at the back.
Downstairs, an expansive living area awaits, complete with a theatre-sized alcove and a built-in library adorned with Hampton style shutters. Direct access to the double lock-up garage ensures convenience for vehicle owners.
Upstairs, two additional bedrooms complement the grand master suite and its luxurious bathroom. All bedrooms meet the highest standards, with the master suite boasting a private balcony offering panoramic views of Yokine.
The upstairs living area provides additional space for relaxation or entertainment, catering to both adults and children.
Also if you are requiring multi-generational living the floor plan of this home works perfectly for integration and privacy between everyone.
This exceptional property is not just a home; it's a lifestyle. Situated in the highly sought-after suburb of Yokine, residents enjoy proximity to the Western Australian Golf Course and easy access to Perth city, all within a 15-minute drive.
Don't miss out on this rare opportunity. Homes like these are in high demand and won't last long. Schedule your viewing today and embrace the unmatched comfort and convenience of Yokine living.
